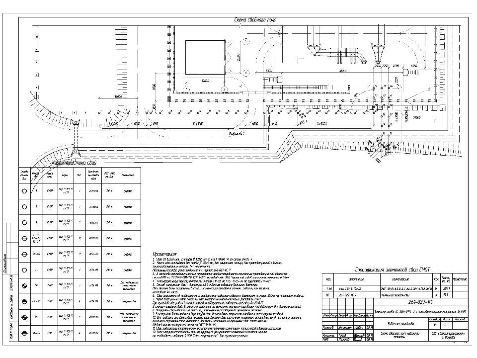
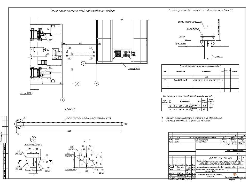
Противопучинные мероприятия сваи СМОТ опора для вытяжной свечи Презентации / Презентации по Технологии